Grote nieuwbouw woning met diepe tuin te Slijpe (Mogelijkheid 6% BTW)
Ontdek deze nieuwbouwwoning, zeer lichtrijk, hoogwaardig afgewerkt, modern én gezellig ingericht, nog keuzes mogelijk.
En dé connectie naar buiten en de natuur.
Slijpe ligt ideaal gelegen aan de op/afrit van de E40 (Middelkerke) en heeft een snelle verbinding naar zowel Nieuwpoort, Middelkerke (dichtste strand) als Oostende (alle winkels en faciliteiten) via de binnenbaan, ook Diksmuide ligt op een boogscheut, langs de prachtige polders achter de kust.
Belangrijkste kenmerken:
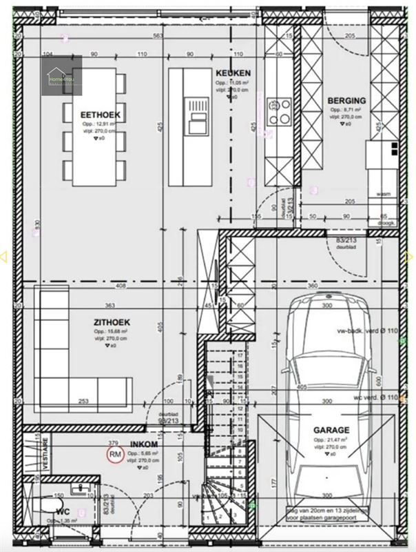
Ruime inkom met toilet,
Diepe leefruimte met open keuken,
Connectie met buiten door grote raampartij,
Binnen/buiten leven in zomer,
Ruime garage met alle aansluitingen,
Berging (wasplaats),
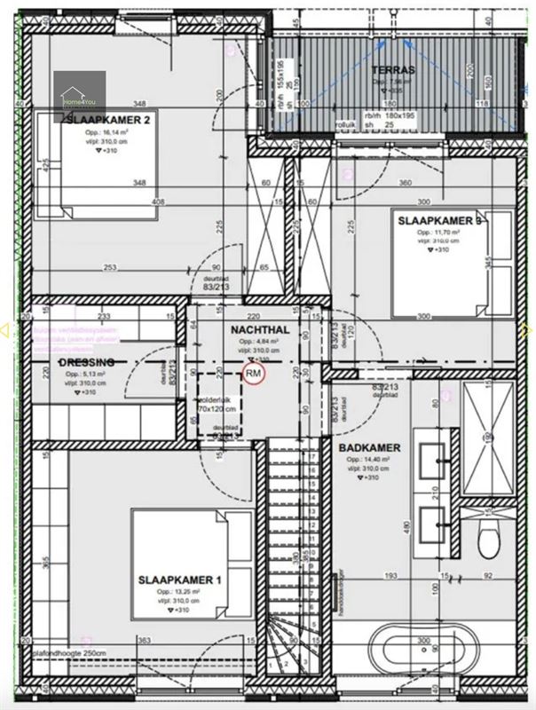
Grote boven met 3 slaapkamers en mooie grote badkamer,
2 wc's,
Zolder (extra mogelijkheden kamers) ,
Leuk terrasje aan de slaapkamer, met zicht op de tuin,
Mogelijkheid 6% indien voldaan aan voorwaarden,
EPC A+,
Diepe tuin,
Afwerkingen mogelijk in samenspraak met eigenaar.
Voor meer info of een bezoek:
karel@home4you.be
0470342025
7/7 bereikbaar. Ook na de kantooruren.








































